| ImmoID: 109793 Mieterprovisionsfrei und klimatisiert - ca. 1.310 m² gepflegte Büroetage in Ettlingen-West |
| |
 |
| Detailansicht |
zurück |
 |
| |
|
Umgebungskarte
|
| |
 |
| Weitere Ansichten |
 |
| |
|
| |
 |
| Daten |
 |
| |
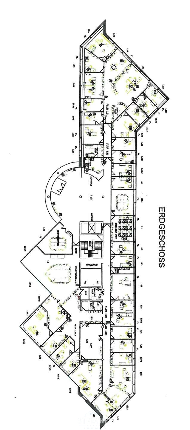
| Beschreibung: | Sehr gepflegte und klimatisierte Büroetage im EG eines markanten Bürohaus mit ca. 1.310 m². Repräsentatives Entree und durchdachte Aufteilung der Mietfläche. Ausreichend zusätzlich anmietbare Kfz-Stellplätze befinden sich hinter dem Gebäude. Zusätzlich ist eine aktive Cafeteria im II.OG vorhanden. Die entgeltliche Mitnutzung dieser Occasion ist ausdrücklich vermieterseits erwünscht. In jedem Geschoss ist eine kleine zentral gelegene Teeküche vorhanden. Bei Bedarf können bis zu 394 m² Lagerfläche im Hanggeschoß oder weitere Bürofläche im I.OG mitangemietet werden. Die Freistellung erfolgt kurzfristig nach Vereinbarung. |
| Ort: | 76275 Ettlingen |
| |
| Lage: | Verkehrsgünstige und exponierte Lage im Gewerbegebiet Ettlingen-West. Der BAB-A5 Anschluß Karlsruhe-Süd ist in wenigen Fahrminuten erreichbar. Ebenso die B-3 mit weiteren Anschluß nach Karlsruhe, bzw. die B-10 (Südtangente) |
| Sonstiges: | Ein Energieausweis ist vorhanden.
Verbrauchssausweis
Erstelldatum: 18.07.2024
Gültig bis: 18.07.2034
Baujahr: 1992
Energieträger für Heizung und Warmwasser: Gas
Endenergiebedarf Strom: 79,5 kWh/(m²*a)
Endenergiebedarf Wärme: 106,8 kWh/(m²*a)
Ein neuer Energieausweis wird gerade erstellt.
Alle Beträge sind Nettobeträge und verstehen sich zzgl. der gesetzl. MwSt |
| |
| Bürofläche: | 1310 m² |
| Anbieter-Objekt-Nr.: | 2024056 |
| Daten Energieausweis: | Energieausweises: Verbrauch
|
| Angaben Energieausweis: | Energieausweises: Verbrauch Angaben soweit vorliegend, bzw. verfügbar. |
|
| |
 |
| Expose |
 |
| |
| Zum Drucken oder Aufbewahren können Sie das Expose herunterladen
|
| |
 |
| Immo-SuchAgent () |
 |
| |
| Einfach die Eckdaten Ihrer Wunschimmobilie eingeben und auch in Zukunft informiert bleiben! |
| |
 |
| Objektmerker |
 |
| |
| Dem Objektmerker hinzufügen. |
| |
 |
| Kontaktformular |
 |
| |
|
|
| |
| Rechtlicher Hinweis: Für die Inhalte sowie Richtigkeit und Aktualität des Angebots ist allein der Anbieter verantwortlich. Weitere gesetzlich vorgeschriebene Angaben zum Anbieter entnehmen Sie bitte, sofern nicht unter den weiteren Informationen des Anbieters angegeben, dessen eigener Webseite die wir unter genannter Seite anführen. Wenn Sie Ihre Telefonnummer angeben, geben Sie Ihre Einwilligung vom Anbieter zurückgerufen zu werden. |