trenner
Immobilien Karlsruhe
trenner
home      suchen      wohnimmobilien      gewerbeimmobilien      firmen & makler      gesuch aufgeben      dienstleistungen      immo-magazin      
trenner
trenner
trenner trenner
Marktplatz
Gesuch aufgeben
Gesuche anzeigen
trenner
Immobilien
Wohnung Miete
Wohnung Kauf
Haus Miete
Haus Kauf
Möbliertes Wohnen
Alle Grundstücke
Grundstücke (Miete/Pacht)
Grundstücke (Kauf)
trenner
Suchen
Schnellsuche ImmoID
Erweiterte Suche
trenner
Immobilien anbieten
Private Anbieter
Gewerbliche Anbieter
trenner
Login
trenner
trenner
trenner
trenner Passwort vergessen
trenner Registrieren
trenner Als Makler registrieren
trenner
ImmoID: 110118    Exklusive Bürofläche im Erdgeschoss – Modern und Flexibel nutzbar
 
Detailansicht zurück
 
Kartenansicht Umgebungskarte
 
Weitere Ansichten
 
 
Daten
 
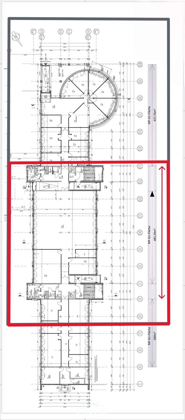
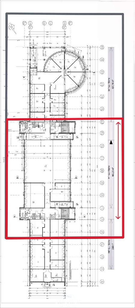
Beschreibung:Diese attraktive Bürofläche in der Nachbarschaft des Karlspark, einem der führenden Technologiezentren in Karlsruhe, bietet eine moderne und flexible Arbeitsumgebung. Mit einer Fläche von ca. 535,38 m² im Erdgeschoss überzeugt sie durch ihre großzügige Aufteilung und hervorragende Ausstattung.

Highlights der Bürofläche
-Separater Eingang auf der Nordseite für eine unabhängige Nutzung
-Großraumbüro, mittelgroßes Büro und zwei Lagerflächen für vielfältige Geschäftsanforderungen
-Flexible Raumgestaltung für individuelle Nutzungsmöglichkeiten
-weitere Highlights siehe Ausstattung

Zusätzlich können Stellplätze angemietet werden, um den Komfort für Mitarbeitende und Besucher weiter zu erhöhen.

Diese Büroeinheit ist ideal für Unternehmen, die eine vielseitige, moderne und optimal angebundene Arbeitsumgebung suchen.

Zögern Sie nicht und sichern Sie sich diese außergewöhnliche Bürofläche. Kontaktieren Sie uns noch heute, um einen Besichtigungstermin zu vereinbaren und mehr zu erfahren. Wir freuen uns auf Ihre Anfrage!
Ort:76187 Karlsruhe
Lage:Diese Büroflächen in der Nachbarschaft des Karlspark, einem bedeutenden Teil des Technologiezentrums Karlsruhe, bieten eine erstklassige Lage für etablierte Unternehmen und innovative Start-ups. Die zentrale Lage vereint exzellente Anbindungen mit einer dynamischen Umgebung.

Verkehrsanbindung & Erreichbarkeit:

-Nähe zur A5 und A8 für regionale & nationale Verbindungen
-Karlsruher Hauptbahnhof in wenigen Minuten erreichbar
-Flughäfen Karlsruhe/Baden-Baden (35 Min.) & Stuttgart (60 Min.) gut angebunden
-Direkte Anbindung an öffentlichen Nahverkehr für Mitarbeiter & Kunden

Innovation & attraktive Arbeitsumgebung:

-Nähe zum Karlspark mit Forschungsinstituten & Tech-Unternehmen
-Idealer Standort für Forschung, Entwicklung & IT-Branche
-Grüne Umgebung für produktives Arbeitsklima
-Cafés, Restaurants & Freizeitmöglichkeiten in der Nähe
-Hoher Arbeits- & Lebenskomfort zur Förderung der Mitarbeiterbindung
-Netzwerkmöglichkeiten durch attraktive Standortbedingungen

Zusammenfassung:

-Hervorragende Verkehrsanbindung & zentrale Lage
-Modernste Infrastruktur & wissenschaftlicher Austausch
-Kombination aus Innovation, Wachstum & Kooperation
-Optimal für Unternehmen mit Fokus auf Technologie & Entwicklung
Ausstattung:-Lichtdurchflutete Räume dank großzügiger Fensterflächen
-Hochwertige Klimatisierung für eine angenehme Arbeitsumgebung
-Elektrische Jalousien zur individuellen Regulierung der Sonneneinstrahlung
-Barrierefreier Zugang durch Aufzug und stufenlose Gestaltung
-Moderne IT-Infrastruktur mit weitreichenden Anschlüssen für technische Geräte
-

Sanitäreinrichtungen für Männer, Frauen und Menschen mit Handicap
Sonstiges:Stellplatz vorhanden
Alle Beträge sind Nettobeträge und verstehen sich zzgl. der gesetzl. MwSt.
Bürofläche: 535.38 m²
Anbieter-Objekt-Nr.: 2024133
Daten Energieausweis: Energieausweises: Bedarf
Angaben Energieausweis: Energieausweises: Bedarf
Angaben soweit vorliegend, bzw. verfügbar.
 
Expose
 
Zum Drucken oder Aufbewahren können Sie das Expose herunterladen
 
Immo-SuchAgent (neu!)
 
Einfach die Eckdaten Ihrer Wunschimmobilie eingeben und auch in Zukunft informiert bleiben!
 
Objektmerker
 
Dem Objektmerker hinzufügen.
 
Kontaktformular
 
Strecker-Olenyi
Herr Arno Strecker

Telefon: (0721) 96 24 6-66
Telefax: 07 21 – 9 62 46 – 69

Alle Objekte des Anbieters anzeigen

Weitere Informationen zum Anbieter
Anrede:
Vorname*:
Nachname*:
Straße / Nr*:
PLZ / Stadt*:
Telefon:
E-Mail*:
Ihre Wünsche:  
Bitte informieren Sie mich auch über vergleichbare Objekte.
Ich habe die Datenschutzerklärung gelesen und bestätige die Verwendung meiner Daten.
 
Rechtlicher Hinweis: Für die Inhalte sowie Richtigkeit und Aktualität des Angebots ist allein der Anbieter verantwortlich. Weitere gesetzlich vorgeschriebene Angaben zum Anbieter entnehmen Sie bitte, sofern nicht unter den weiteren Informationen des Anbieters angegeben, dessen eigener Webseite die wir unter genannter Seite anführen. Wenn Sie Ihre Telefonnummer angeben, geben Sie Ihre Einwilligung vom Anbieter zurückgerufen zu werden.
trenner
 
mannheim fertighaus center
 
wertermittlung
 
trenner
trenner
:Datenschutzerklärung | Wohnung in Karlsruhe kaufen | Haus in Karlsruhe kaufen | Immobilien in Karlsruhe | Immobilien in Pforzheim | Immobilien in Stuttgart | Kontakt | Impressum  | AGB