trenner
Immobilien Karlsruhe
trenner
home      suchen      wohnimmobilien      gewerbeimmobilien      firmen & makler      gesuch aufgeben      dienstleistungen      immo-magazin      
trenner
trenner
trenner trenner
Marktplatz
Gesuch aufgeben
Gesuche anzeigen
trenner
Immobilien
Wohnung Miete
Wohnung Kauf
Haus Miete
Haus Kauf
Möbliertes Wohnen
Alle Grundstücke
Grundstücke (Miete/Pacht)
Grundstücke (Kauf)
trenner
Suchen
Schnellsuche ImmoID
Erweiterte Suche
trenner
Immobilien anbieten
Private Anbieter
Gewerbliche Anbieter
trenner
Login
trenner
trenner
trenner
trenner Passwort vergessen
trenner Registrieren
trenner Als Makler registrieren
trenner
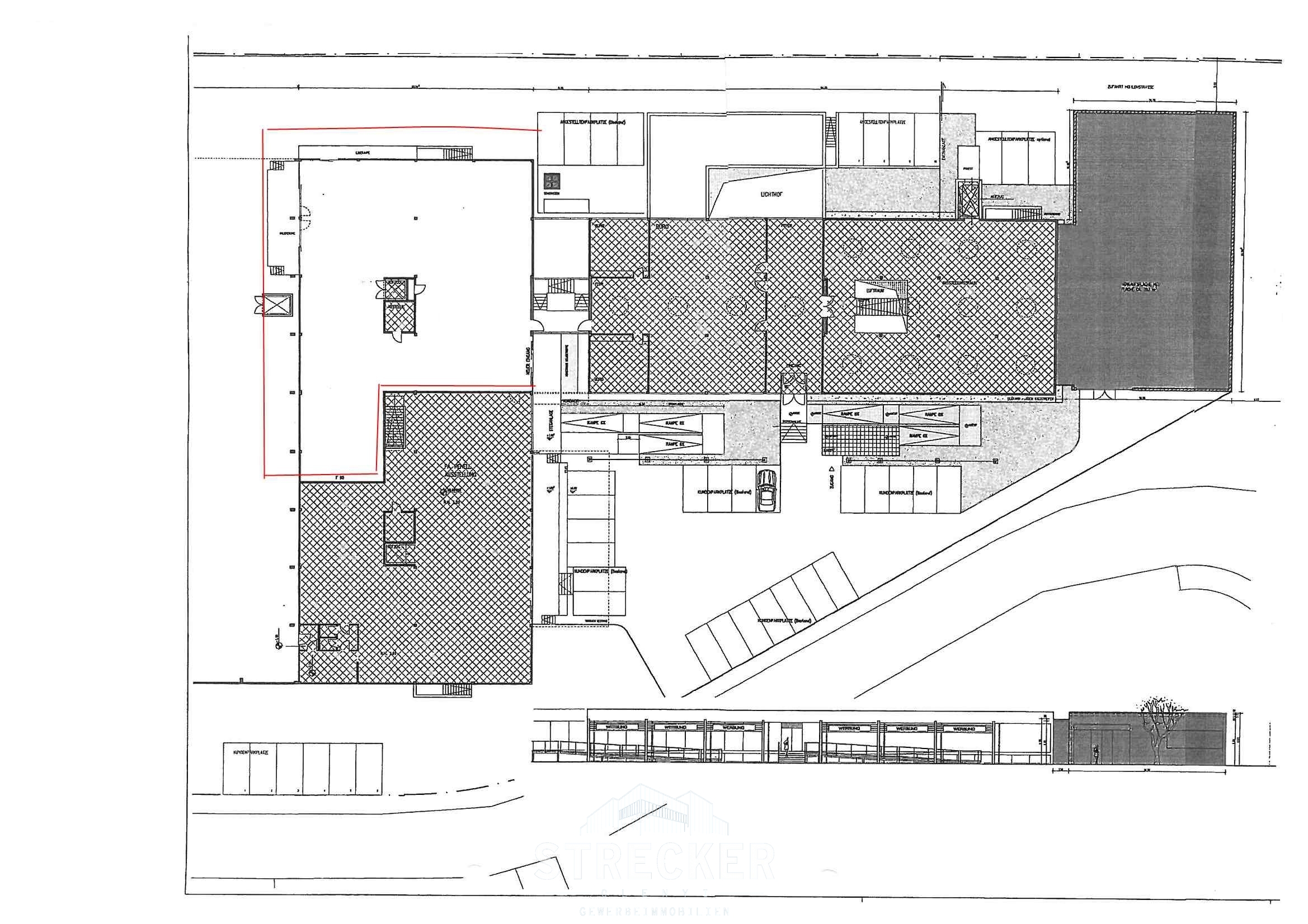
ImmoID: 110149    Gewerbeflächen in gepflegten Gewerbepark in Karlsruhe-Grünwinkel
 
Detailansicht zurück
 
Kartenansicht Umgebungskarte
 
Weitere Ansichten
 
 
Daten
 
Beschreibung:In einem bestehenden und gut frequentiertem Gewerbepark / Fachmarktzentrum kommt eine Fläche mit ca. 540 m² Mietfläche im EG zur Vermietung. (Personalräume, sowie WC's befinden sich im Untergeschoss.) Die Fläche wurde bisher als Handels- und Lagerfläche genutzt und besitzt einen charmanten Industrieloftcharakter mit großem verglasten Eingangsbereich. Die Räume stehen spätestens ab Anfang Dezember 2025 zur Verfügung. Kfz-Stellplätze stehen in ausreichender Zahl zur Verfügung. Bei Bedarf stehen direkt im Anschluss an die Mietfläche weitere ca. 238m² Bürofläche zur Verfügung.
Ort:76189 Karlsruhe
Lage:Die Durmersheimer Straße verläuft nahezu parallel zur B36 und verbindet die Stadtteile KA-Grünwinkel und KA-Mühlburg. Über die nahegelegene Pulverhaus- bzw. Rheinhafenstraße sind es nur wenige Fahrminunten zum Rheinhafen und zur Südtangente. In unmittelbarer Nähe haben sich Firmen, wie HIT, ein Baumarkt, RENO-Schuhmarkt und verschiedene Fachgeschäft, bzw. im Gebäude selbst ein Polstermöbelhandel, ein EDV-Großhandel, eine Fernsehfachmarkt sowie die Fa. Freßnapf angesiedelt.
Sonstiges:Ein Energieausweis ist vorhanden. Verbrauchssausweis Erstelldatum: 10.01.2020 Gültig bis: 10.01.2030 Baujahr: 1968 Energieträger für Heizung und Warmwasser: Heizöl Endenergiebedarf Wärme: 73,6 kWh/(m²*a) Alle Beträge sind Nettobeträge und verstehen sich zzgl. der gesetzl. MwSt.
Kaltmiete:3.990,00 €
  
Anbieter-Objekt-Nr.: 2025019
Daten Energieausweis: 
Angaben Energieausweis: Angaben soweit vorliegend, bzw. verfügbar.
 
Expose
 
Zum Drucken oder Aufbewahren können Sie das Expose herunterladen
 
Immo-SuchAgent (neu!)
 
Einfach die Eckdaten Ihrer Wunschimmobilie eingeben und auch in Zukunft informiert bleiben!
 
Objektmerker
 
Dem Objektmerker hinzufügen.
 
Kontaktformular
 
Strecker-Olenyi
Herr Joachim Raber

Telefon: (0721) 96 24 6-63
Telefax: 07 21 – 9 62 46 – 69

Alle Objekte des Anbieters anzeigen

Weitere Informationen zum Anbieter
Anrede:
Vorname*:
Nachname*:
Straße / Nr*:
PLZ / Stadt*:
Telefon:
E-Mail*:
Ihre Wünsche:  
Bitte informieren Sie mich auch über vergleichbare Objekte.
Ich habe die Datenschutzerklärung gelesen und bestätige die Verwendung meiner Daten.
 
Rechtlicher Hinweis: Für die Inhalte sowie Richtigkeit und Aktualität des Angebots ist allein der Anbieter verantwortlich. Weitere gesetzlich vorgeschriebene Angaben zum Anbieter entnehmen Sie bitte, sofern nicht unter den weiteren Informationen des Anbieters angegeben, dessen eigener Webseite die wir unter genannter Seite anführen. Wenn Sie Ihre Telefonnummer angeben, geben Sie Ihre Einwilligung vom Anbieter zurückgerufen zu werden.
trenner
 
mannheim fertighaus center
 
wertermittlung
 
wolf immobilien
 
trenner
trenner
:Datenschutzerklärung | Wohnung in Karlsruhe kaufen | Haus in Karlsruhe kaufen | Immobilien in Karlsruhe | Immobilien in Pforzheim | Immobilien in Stuttgart | Kontakt | Impressum  | AGB