|
|
 |
| ImmoID: 110152 Beliebte, ruhige Lage: Top Bauplatz für freistehendes EFH/ DH |
| |
 |
| Detailansicht |
zurück |
 |
| |
|
Umgebungskarte
|
| |
 |
| Weitere Ansichten |
 |
| |
|
| |
 |
| Daten |
 |
| |
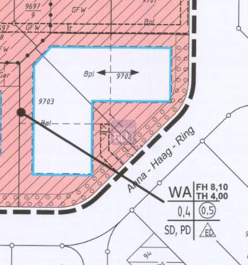
| Beschreibung: | Traumhaftes Grundstück in begehrter Lage von Mühlacker
Wohngebiet Stöckach
Grüne, ruhige Lage in einem gewachsenen Wohngebiet ohne Durchgangsverkehr
Grundstück mit geringer Höhendifferenz und guter Zugänglichkeit.
Familienfreundlich
Grundstückgröße 633 m²
Bebaubar mit einem freistehenden Einfamilienhaus oder Doppelhaus mit Satteldach/ Pultdach
GRZ: 0,4
GFZ: 0,5
TH: 8,10
TH, 4,00
Das Baugebiet ist erschlossen, Sie müssen lediglich den Anschluss zur Straße herstellen. |
| Ort: | 75417 Mühlacker |
| |
| Lage: | Das Grundstück liegt in Mühlacker, eine großen Kreisstadt im Enzkreis, im beliebten Wohngebiet Stöckach.
Hier gibt es alles, damit Sie sich rundum wohlfühlen:
- tolle topographische Lage am Rande des Nordschwarzwaldes
- familienfreundliches Wohngebiet ohne Durchgangsverkehr
- zahlreiche Unternehmungsmöglichkeiten direkt vor der Haustür
- eine vielfältige Auswahl an Geschäften des täglichen Bedarfs
- Kindergärten, Grund-, Real- und Berufsschulen und Gymnasium vor Ort
- sehr gute medizinische Versorgung durch Fachärzte, Krankenhaus, Apotheken
- sehr gute Anbindung an den öffentlichen Nah- und Fernverkehr ( mehrere Buslinien, S-Bahnen ( KA- Mühlacker, Bietigheim-Bissingen-Bruchsal, Intercity nach Stuttgart)
- die Bushaltestelle ist nur 400 Meter entfernt, der Bahnhof schnell fußläufig erreichbar
- sehr gute Anbindung an das regionale und überregionale Straßennetz über A8, B10 und B35 |
| Sonstiges: | Gerne stehen wir Ihnen für einen Besichtigungstermin zur Verfügung.
Bei Bedarf beraten wir Sie auch individuell zu allen Finanzierungsfragen. Lassen Sie sich ein unverbindliches Finanzierungsangebot zu Topkonditionen erstellen.
Bitte nutzen Sie vorzugsweise die Funktion "Anbieter kontaktieren". Bitte hinterlassen Sie dort auch Ihre Telefonnummer - dies erleichtert die Terminabstimmung eines Besichtigungstermins erheblich.
Der Käufer verpflichtet sich zur Zahlung einer Käuferprovision in Höhe von 3,57% inkl. derzeit 19% MwSt. auf den beurkundeten Kaufpreis.
Gerne sind wir bei der Vermarktung Ihrer Immobilie behilflich. |
| |
| Kaufpreis: | 294.000,00 € |
| | |
| Grundstücksfläche: | 633 m² |
| |
| Courtage: | 3,57 % incl. MwSt. (inkl. MwSt) |
| Anbieter-Objekt-Nr.: | StS-13877 |
| Daten Energieausweis: | |
| Angaben Energieausweis: | Angaben soweit vorliegend, bzw. verfügbar. |
|
| |
 |
| Expose |
 |
| |
| Zum Drucken oder Aufbewahren können Sie das Expose herunterladen
|
| |
 |
| Immo-SuchAgent () |
 |
| |
| Einfach die Eckdaten Ihrer Wunschimmobilie eingeben und auch in Zukunft informiert bleiben! |
| |
 |
| Objektmerker |
 |
| |
| Dem Objektmerker hinzufügen. |
| |
 |
| Kontaktformular |
 |
| |
|
|
| |
| Rechtlicher Hinweis: Für die Inhalte sowie Richtigkeit und Aktualität des Angebots ist allein der Anbieter verantwortlich. Weitere gesetzlich vorgeschriebene Angaben zum Anbieter entnehmen Sie bitte, sofern nicht unter den weiteren Informationen des Anbieters angegeben, dessen eigener Webseite die wir unter genannter Seite anführen. Wenn Sie Ihre Telefonnummer angeben, geben Sie Ihre Einwilligung vom Anbieter zurückgerufen zu werden. |
|
 |
|