trenner
Immobilien Karlsruhe
trenner
home      suchen      wohnimmobilien      gewerbeimmobilien      firmen & makler      gesuch aufgeben      dienstleistungen      immo-magazin      
trenner
trenner
trenner trenner
Marktplatz
Gesuch aufgeben
Gesuche anzeigen
trenner
Immobilien
Wohnung Miete
Wohnung Kauf
Haus Miete
Haus Kauf
Möbliertes Wohnen
Alle Grundstücke
Grundstücke (Miete/Pacht)
Grundstücke (Kauf)
trenner
Suchen
Schnellsuche ImmoID
Erweiterte Suche
trenner
Immobilien anbieten
Private Anbieter
Gewerbliche Anbieter
trenner
Login
trenner
trenner
trenner
trenner Passwort vergessen
trenner Registrieren
trenner Als Makler registrieren
trenner
ImmoID: 110200    Freie Produktionshalle mit Verwaltung und Schwerlastkränen
 
Detailansicht zurück
 
Kartenansicht Umgebungskarte
 
Weitere Ansichten
 
 
Daten
 
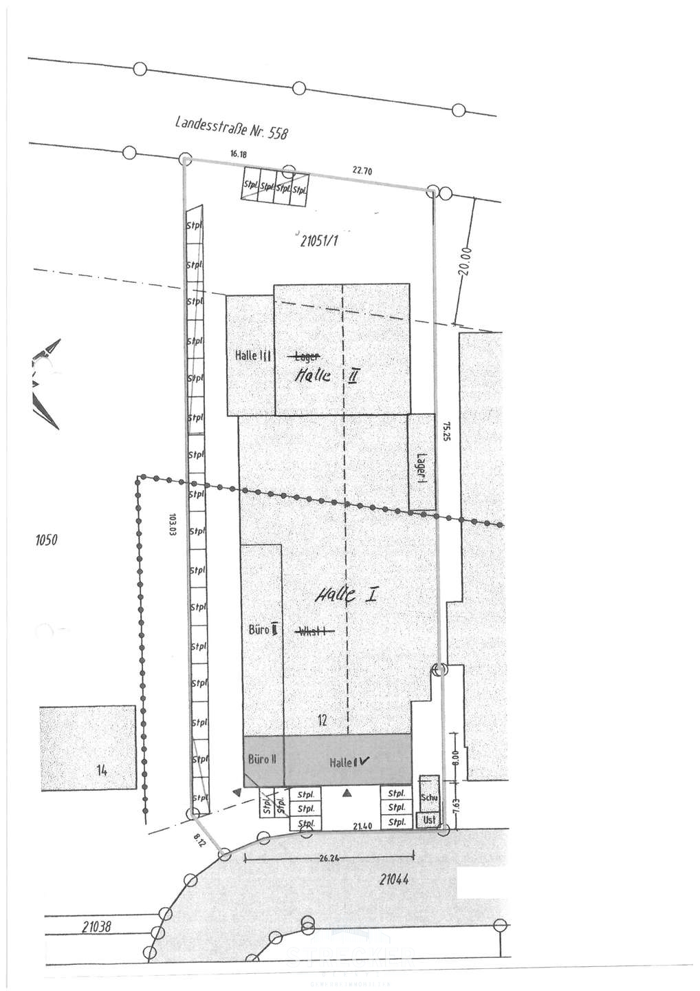
Beschreibung:Die Produktionsstätte liegt in einem gewachsenen Gewerbegebiet auf einem 4.011 m² großen, nahezu rechteckigem Grundstück. Die Gesamtgröße beträgt ca. 2.430 m² und verteilt sich auf ca. 2.080 m² über Gas beheizbare Hallenflächen der Baujahre 1977 - 2005 und ca. 350 m² teilweise klimatisierter Verwaltungs / Büroflächen der Baujahre 1977 bis 2008. Die Höhen der Halle betragen ca. 5,50 m Uk. Kranbahn, ca. 7 m First- und ca. 8 m Traufhöhe. Auf dem Areal sind lt. Lageplan bis zu 30 Stellplätze nachgewiesen.
Das Areal steht zur Zeit leer (bis auf die Hausmeisterwohnung) und steht somit kurzfristig nach Vereinbarung zur Verfügung. In der Vergangenheit wurde die Liegenschaft u.a. zum Laserstahlschneiden genutzt. Daher ist auch eine Trafostation vorhanden.
Ort:76646 Bruchsal
Lage:Das Grundstück liegt im Gewerbegebiet "Lochwiesen-Regenwiesen" im südlichen Bereich von Bruchsal. Die Entfernung zur B 35 beträgt ca. 800 m, zur BAB A5 Anschluß Bruchsal ca. 4 km und in die Innenstadt Bruchsal/Bahnhof ca. 2 km
Sonstiges:Ein Energieausweis wird gerade vom Eigentümer erstellt. Wir reichen diesen nach, sobald er uns vorliegt.
Kaufpreis:2.350.000,00 €
  
Grundstücksfläche: 4011 m²
Courtage: 3,57% (inkl. MwSt)
Anbieter-Objekt-Nr.: 2025055
Daten Energieausweis: 
Angaben Energieausweis: Angaben soweit vorliegend, bzw. verfügbar.
 
Expose
 
Zum Drucken oder Aufbewahren können Sie das Expose herunterladen
 
Immo-SuchAgent (neu!)
 
Einfach die Eckdaten Ihrer Wunschimmobilie eingeben und auch in Zukunft informiert bleiben!
 
Objektmerker
 
Dem Objektmerker hinzufügen.
 
Kontaktformular
 
Strecker-Olenyi
Herr Joachim Raber

Telefon: (0721) 96 24 6-63
Telefax: 07 21 – 9 62 46 – 69

Alle Objekte des Anbieters anzeigen

Weitere Informationen zum Anbieter
Anrede:
Vorname*:
Nachname*:
Straße / Nr*:
PLZ / Stadt*:
Telefon:
E-Mail*:
Ihre Wünsche:  
Bitte informieren Sie mich auch über vergleichbare Objekte.
Ich habe die Datenschutzerklärung gelesen und bestätige die Verwendung meiner Daten.
 
Rechtlicher Hinweis: Für die Inhalte sowie Richtigkeit und Aktualität des Angebots ist allein der Anbieter verantwortlich. Weitere gesetzlich vorgeschriebene Angaben zum Anbieter entnehmen Sie bitte, sofern nicht unter den weiteren Informationen des Anbieters angegeben, dessen eigener Webseite die wir unter genannter Seite anführen. Wenn Sie Ihre Telefonnummer angeben, geben Sie Ihre Einwilligung vom Anbieter zurückgerufen zu werden.
trenner
 
mannheim fertighaus center
 
wertermittlung
 
wolf immobilien
 
trenner
trenner
:Datenschutzerklärung | Wohnung in Karlsruhe kaufen | Haus in Karlsruhe kaufen | Immobilien in Karlsruhe | Immobilien in Pforzheim | Immobilien in Stuttgart | Kontakt | Impressum  | AGB