|
|
 |
| ImmoID: 110213 Erstklassige Neubau Büro-/Ladenflächen in Baden-Baden |
| |
 |
| Detailansicht |
zurück |
 |
| |
|
Umgebungskarte
|
| |
 |
| Weitere Ansichten |
 |
| |
|
| |
 |
| Daten |
 |
| |
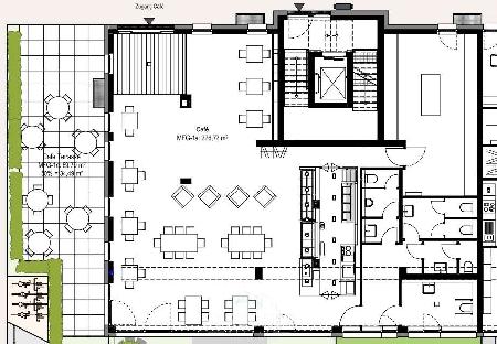
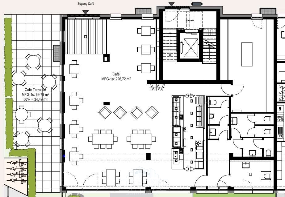
| Beschreibung: | Zum Verkauf stehten insgesamt 3 Gewerbeeinheiten mit jeweils ca. 118,34 m², ca. 249,40 m² und ca. 261,21 m².
Die Einheiten befinden sich im Erdgeschoss eines durch die Firma Weisenburger neu erstellten Wohn- & Geschäftshauses.
Ideal eignen sich die Flächen als Büro-/ Praxisflächen oder Ladengeschäfte. Auch steht eine Einheit zur gastronomischen Nutzung zur Verfügung.
Kanzlei - Büro - Handel - Gewerberäume mit viel Potenzial. Neubau, lichtdurchflutet im Erdgeschoss mit separatem Zugang.
Jetzt können Sie die Aufteilung der Räume und die Ausstattung noch mitbestimmen. |
| Ort: | 76532 Baden-Baden |
| |
| Lage: | Projekt "Wohnen an den Oosgärten" Baden-Baden, Zentrum Stadtteil Oos, Sinzheimer Straße. Viele umliegende Einzelhandelsgeschäfte, Banken, Apotheke etc. Sehr gute Infrastruktur, Bahnhof, B500, B3, Anschluss A5 und Flughafennähe. Hervorragende Busverbindungen in das Zentrum von Baden-Baden sowie den umliegenden Stadtteilen sind gegeben. Weitere öffentliche Parkplätze sind vorhanden. |
| Ausstattung: | - Gewerberäume im Erdgeschoss
- Erstbezug
- Behindertengerecht
- gemeinsames Blockheizkraftwerk
- bodentiefe, 3-fach isolierverglaste Fenster
- Glasfaser
- sanitäre Einrichtungen und Fliesen 30/60cm
- Terrasse
- freie Gestaltung der Räume
- veredelter Rohbau, auf Wunsch auch als Individualausbau |
| |
| Anbieter-Objekt-Nr.: | 2023018 - Verkauf |
| Daten Energieausweis: | Energieausweises: Bedarf Endenergiebedarf: 219.6
|
| Angaben Energieausweis: | Energieausweises: Bedarf Endenergiebedarf: 219.6 Angaben soweit vorliegend, bzw. verfügbar. |
|
| |
 |
| Expose |
 |
| |
| Zum Drucken oder Aufbewahren können Sie das Expose herunterladen
|
| |
 |
| Immo-SuchAgent () |
 |
| |
| Einfach die Eckdaten Ihrer Wunschimmobilie eingeben und auch in Zukunft informiert bleiben! |
| |
 |
| Objektmerker |
 |
| |
| Dem Objektmerker hinzufügen. |
| |
 |
| Kontaktformular |
 |
| |
|
|
| |
| Rechtlicher Hinweis: Für die Inhalte sowie Richtigkeit und Aktualität des Angebots ist allein der Anbieter verantwortlich. Weitere gesetzlich vorgeschriebene Angaben zum Anbieter entnehmen Sie bitte, sofern nicht unter den weiteren Informationen des Anbieters angegeben, dessen eigener Webseite die wir unter genannter Seite anführen. Wenn Sie Ihre Telefonnummer angeben, geben Sie Ihre Einwilligung vom Anbieter zurückgerufen zu werden. |
|
 |
|