trenner
Immobilien Karlsruhe
trenner
home      suchen      wohnimmobilien      gewerbeimmobilien      firmen & makler      gesuch aufgeben      dienstleistungen      immo-magazin      
trenner
trenner
trenner trenner
Marktplatz
Gesuch aufgeben
Gesuche anzeigen
trenner
Immobilien
Wohnung Miete
Wohnung Kauf
Haus Miete
Haus Kauf
Möbliertes Wohnen
Alle Grundstücke
Grundstücke (Miete/Pacht)
Grundstücke (Kauf)
trenner
Suchen
Schnellsuche ImmoID
Erweiterte Suche
trenner
Immobilien anbieten
Private Anbieter
Gewerbliche Anbieter
trenner
Login
trenner
trenner
trenner
trenner Passwort vergessen
trenner Registrieren
trenner Als Makler registrieren
trenner
ImmoID: 110293    Vielseitig nutzbare Lagerhalle in bester Lage von Ettlingen – mit optionalen Flächen am Standort
 
Detailansicht zurück
 
Kartenansicht Umgebungskarte
 
Weitere Ansichten
 
 
Daten
 
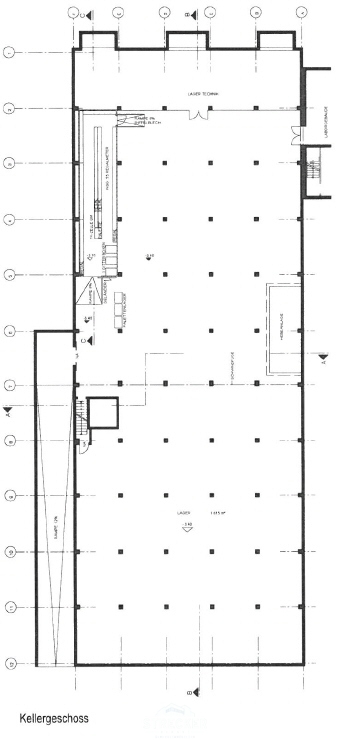
Beschreibung:Zur Vermietung steht eine großzügige, moderne Lagerhalle in verkehrsgünstiger Lage im Raum Ettlingen. Die Halle besticht durch ihre besondere Höhe und ist somit ideal für Hochregallagerung oder andere gewerbliche Nutzungen mit Platzbedarf geeignet.

Zwei große, elektrische Rolltore sorgen für einen bequemen Zugang für LKWs und Transportfahrzeuge. Die Halle ist mit zwei fest installierten Ladestationen für Gabelstapler ausgestattet – optimal für einen reibungslosen und effizienten Betriebsablauf.

Ein kleines, funktional ausgestattetes Verwaltungsbüro ist direkt an die Halle angebunden und bietet Platz für Organisation, Disposition oder Verwaltungstätigkeiten.

Auf dem Grundstück stehen zudem weitere Gewerbeflächen zur Verfügung, die bei Bedarf flexibel kombiniert und zusätzlich angemietet werden können:

• Büroflächen – ideal für Verwaltung, Planung oder Kundenservice
• Kommissionslager – optimal für effiziente logistische Abläufe
• Kühllager – geeignet für temperaturgeführte Waren
• Hochregallager – für platzsparende und strukturierte Lagerlösungen
• Außenstellplätze – separat anmietbar, ideal für Mitarbeitende, Kunden oder den Fuhrpark

Alle Flächen befinden sich auf demselben Gelände und lassen sich individuell zusammenstellen. So entsteht ein Standort, der genau auf die Anforderungen Ihres Unternehmens zugeschnitten ist.
Ort:76275 Ettlingen
Lage:Das Objekt befindet sich in einem etablierten Gewerbegebiet in Ettlingen, südlich von Karlsruhe. Die Anbindung an das überregionale Verkehrsnetz ist sehr gut. Die Autobahn A5 ist in wenigen Minuten erreichbar und ermöglicht eine schnelle Verbindung in Richtung Karlsruhe, Frankfurt und Basel. Ergänzend dazu verläuft die Bundesstraße B3 in unmittelbarer Nähe.
Der Standort verfügt über eine gut ausgebaute Infrastruktur. Einrichtungen des täglichen Bedarfs sowie gastronomische Angebote befinden sich im näheren Umfeld. Die Ettlinger Innenstadt ist in kurzer Zeit erreichbar. Eine Anbindung an den öffentlichen Nahverkehr ist ebenfalls gegeben.
Ausstattung:- hohe Lagerhalle – bestens geeignet für Hochregale oder sperrige Güter
- zwei große Rolltore – ideal für Anlieferung und Versand
- ebenerdig befahrbar
- zwei Gabelstapler-Ladestationen vorhanden
- integriertes Verwaltungsbüro
- optionale Flächen verfügbar
Anbieter-Objekt-Nr.: 2025040
Daten Energieausweis: 
Angaben Energieausweis: Angaben soweit vorliegend, bzw. verfügbar.
 
Expose
 
Zum Drucken oder Aufbewahren können Sie das Expose herunterladen
 
Immo-SuchAgent (neu!)
 
Einfach die Eckdaten Ihrer Wunschimmobilie eingeben und auch in Zukunft informiert bleiben!
 
Objektmerker
 
Dem Objektmerker hinzufügen.
 
Kontaktformular
 
Strecker-Olenyi
Herr Arno Strecker

Telefon: (0721) 96 24 6-66
Telefax: 07 21 – 9 62 46 – 69

Alle Objekte des Anbieters anzeigen

Weitere Informationen zum Anbieter
Anrede:
Vorname*:
Nachname*:
Straße / Nr*:
PLZ / Stadt*:
Telefon:
E-Mail*:
Ihre Wünsche:  
Bitte informieren Sie mich auch über vergleichbare Objekte.
Ich habe die Datenschutzerklärung gelesen und bestätige die Verwendung meiner Daten.
 
Rechtlicher Hinweis: Für die Inhalte sowie Richtigkeit und Aktualität des Angebots ist allein der Anbieter verantwortlich. Weitere gesetzlich vorgeschriebene Angaben zum Anbieter entnehmen Sie bitte, sofern nicht unter den weiteren Informationen des Anbieters angegeben, dessen eigener Webseite die wir unter genannter Seite anführen. Wenn Sie Ihre Telefonnummer angeben, geben Sie Ihre Einwilligung vom Anbieter zurückgerufen zu werden.
trenner
 
mannheim fertighaus center
 
wertermittlung
 
wolf immobilien
 
trenner
trenner
:Datenschutzerklärung | Wohnung in Karlsruhe kaufen | Haus in Karlsruhe kaufen | Immobilien in Karlsruhe | Immobilien in Pforzheim | Immobilien in Stuttgart | Kontakt | Impressum  | AGB