trenner
Immobilien Karlsruhe
trenner
home      suchen      wohnimmobilien      gewerbeimmobilien      firmen & makler      gesuch aufgeben      dienstleistungen      immo-magazin      
trenner
trenner
trenner trenner
Marktplatz
Gesuch aufgeben
Gesuche anzeigen
trenner
Immobilien
Wohnung Miete
Wohnung Kauf
Haus Miete
Haus Kauf
Möbliertes Wohnen
Alle Grundstücke
Grundstücke (Miete/Pacht)
Grundstücke (Kauf)
trenner
Suchen
Schnellsuche ImmoID
Erweiterte Suche
trenner
Immobilien anbieten
Private Anbieter
Gewerbliche Anbieter
trenner
Login
trenner
trenner
trenner
trenner Passwort vergessen
trenner Registrieren
trenner Als Makler registrieren
trenner
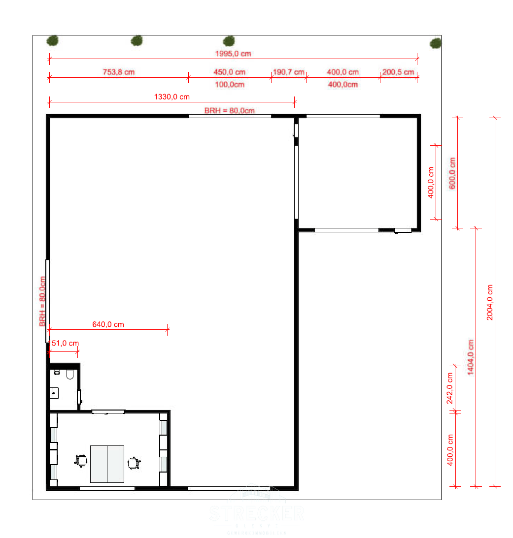
ImmoID: 110300    Hallenbereich mit Büro und WC in Ettlingen-West
 
Detailansicht zurück
 
Kartenansicht Umgebungskarte
 
Weitere Ansichten
 
 
Daten
 
Beschreibung:Hell belichtete Hallenfläche mit integriertem Büro und separatem WC. Sie ist ebenerdig bis zur Sprintergröße anfahrbar. Die Fläche steht zurzeit leer und wird vor Vermietung noch vom Vermieter geräumt und besenrein übergeben. Die Gesamtgröße beträgt ca. 260m², wobei ca. 26m² auf den Büro bzw. Sanitärbereich entfallen. Eine Anmietung kann kurzfristig nach Vereinbarung erfolgen
Ort:76275 Ettlingen
Lage:Die Mietfläche befindet sich in einem etablierten Gewerbegebiet in Ettlingen, südlich von Karlsruhe. Die Anbindung an das überregionale Verkehrsnetz ist ausgezeichnet. Die Autobahn A5 ist in wenigen Minuten erreichbar und ermöglicht eine schnelle Verbindung in Richtung Karlsruhe, Frankfurt und Basel. Ergänzend dazu verläuft die Bundesstraße B3 in unmittelbarer Nähe.

Der Standort verfügt über eine gut ausgebaute Infrastruktur. Einrichtungen des täglichen Bedarfs sowie gastronomische Angebote befinden sich im näheren Umfeld. Die Ettlinger Innenstadt ist in kurzer Zeit erreichbar. Eine Anbindung an den öffentlichen Nahverkehr ist ebenfalls gegeben.
Kaltmiete:1.850,00 €
  
Anbieter-Objekt-Nr.: 2025148
Daten Energieausweis: 
Angaben Energieausweis: Angaben soweit vorliegend, bzw. verfügbar.
 
Expose
 
Zum Drucken oder Aufbewahren können Sie das Expose herunterladen
 
Immo-SuchAgent (neu!)
 
Einfach die Eckdaten Ihrer Wunschimmobilie eingeben und auch in Zukunft informiert bleiben!
 
Objektmerker
 
Dem Objektmerker hinzufügen.
 
Kontaktformular
 
Strecker-Olenyi
Herr Joachim Raber

Telefon: (0721) 96 24 6-63
Telefax: 07 21 – 9 62 46 – 69

Alle Objekte des Anbieters anzeigen

Weitere Informationen zum Anbieter
Anrede:
Vorname*:
Nachname*:
Straße / Nr*:
PLZ / Stadt*:
Telefon:
E-Mail*:
Ihre Wünsche:  
Bitte informieren Sie mich auch über vergleichbare Objekte.
Ich habe die Datenschutzerklärung gelesen und bestätige die Verwendung meiner Daten.
 
Rechtlicher Hinweis: Für die Inhalte sowie Richtigkeit und Aktualität des Angebots ist allein der Anbieter verantwortlich. Weitere gesetzlich vorgeschriebene Angaben zum Anbieter entnehmen Sie bitte, sofern nicht unter den weiteren Informationen des Anbieters angegeben, dessen eigener Webseite die wir unter genannter Seite anführen. Wenn Sie Ihre Telefonnummer angeben, geben Sie Ihre Einwilligung vom Anbieter zurückgerufen zu werden.
trenner
 
mannheim fertighaus center
 
wertermittlung
 
trenner
trenner
:Datenschutzerklärung | Wohnung in Karlsruhe kaufen | Haus in Karlsruhe kaufen | Immobilien in Karlsruhe | Immobilien in Pforzheim | Immobilien in Stuttgart | Kontakt | Impressum  | AGB