|
|
 |
| ImmoID: 109649 Karlsruhe-Bulach - 3 Büroräume und kleines Lager |
| |
 |
| Detailansicht |
zurück |
 |
| |
|
Umgebungskarte
|
| |
 |
| Daten |
 |
| |
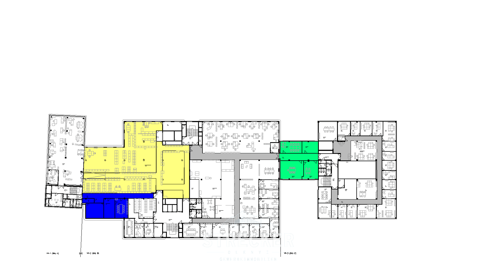
| Beschreibung: | Büroeinheit (im Grundriss blau unterlegt) mit gesamt ca. 161,7 m² im I.OG eines gepflegten Geschäftshaus unweit zur Südtangente. Die Einheit verfügt über 3 Arbeitsräume und ein separates kleines Lager. Es verfügt über keine Teeküche, dafür kann aber die Hausinterne Betriebskantine optional genutzt werden. Eine barrierefreie Andienung ist gegeben. Die Anmietung kann kurzfristig nach Vereinbarung erfolgen. Kfz-Stellplätze stehe auf dem Areal ausreichend zur Verfügung und können zu € 25,--/Stck zzgl. gesetzl. MwSt. zusätzlich angemietet werden. (Im Kellergeschoss eines Nachbargebäudes stehen ggf. weitere Archivräume optional zur Verfügung.) |
| Ort: | 76135 Karlsruhe |
| |
| Lage: | Die Immobilie befindet sich in unmittelbarer Nähe des Autobahnzubringers zur BAB5 Anschlussstelle KA-Süd (ca. 4 KM) und unweit der Südtangente (Bulacher Kreuz)
Die B36 ist ebenso schnell erreichbar, wie der Hauptbahnhof von Karlsruhe. (jew. ca. 5 Fahrminuten) |
| Sonstiges: | Baujahr: 1968
Heizungsart: Fernwärme
Befeuerung/Energieträger: Fernwärme
Energieausweistyp: Verbrauchsausweis
Energiekennwert Wärme: 129,1 kWh/(m²*a)
Energiekennwert Strom: 84,1 kWh/(m²*a)
Ein Energieausweis ist vorhanden.
Verbrauchsausweis
Erstelldatum: 20.10.2020
Gültig bis: 20.10.2030
Baujahr: 1968
Energieträger für Heizung und Warmwasser: Fernwärme
Endenergiebedarf Wärme: 129,1 kWh/(m²*a)
Endenergiebedarf Strom: 84,1 kWh/(m²*a) |
| |
| Nettokaltmiete: | 1.250,00 € |
| Mietpreis pro qm: | 7,73 € |
| | |
| Bürofläche: | 161.7 m² |
| Anbieter-Objekt-Nr.: | 2024012 |
| Daten Energieausweis: | Stromkennwert: 84,1 Wäremekennwert: 129,1
|
| Angaben Energieausweis: | Stromkennwert: 84,1 Wäremekennwert: 129,1 Energieausweistyp: 3 Energiepass Stromwert: 84.10 Energiepass Wärmewert: 129.10 Baujahr: 1968 heizungsart: Fernwärme Befeuerungsart: Fernwärme Angaben soweit vorliegend, bzw. verfügbar. |
|
| |
 |
| Expose |
 |
| |
| Zum Drucken oder Aufbewahren können Sie das Expose herunterladen
|
| |
 |
| Immo-SuchAgent () |
 |
| |
| Einfach die Eckdaten Ihrer Wunschimmobilie eingeben und auch in Zukunft informiert bleiben! |
| |
 |
| Objektmerker |
 |
| |
| Dem Objektmerker hinzufügen. |
| |
 |
| Kontaktformular |
 |
| |
|
|
| |
| Rechtlicher Hinweis: Für die Inhalte sowie Richtigkeit und Aktualität des Angebots ist allein der Anbieter verantwortlich. Weitere gesetzlich vorgeschriebene Angaben zum Anbieter entnehmen Sie bitte, sofern nicht unter den weiteren Informationen des Anbieters angegeben, dessen eigener Webseite die wir unter genannter Seite anführen. Wenn Sie Ihre Telefonnummer angeben, geben Sie Ihre Einwilligung vom Anbieter zurückgerufen zu werden. |
|
 |
|